Unifamiliar aislada en Tarròs, El de 414m2


Casa de 4 habitaciones ubicada en El Tarròs, Lérida.

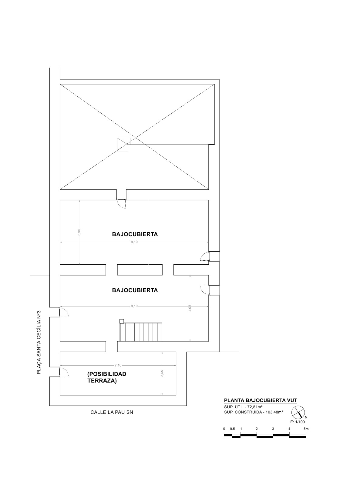
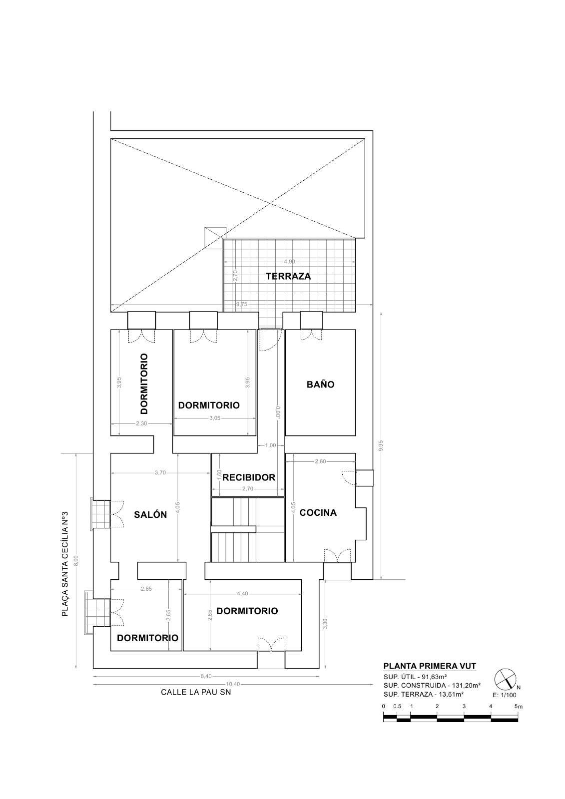
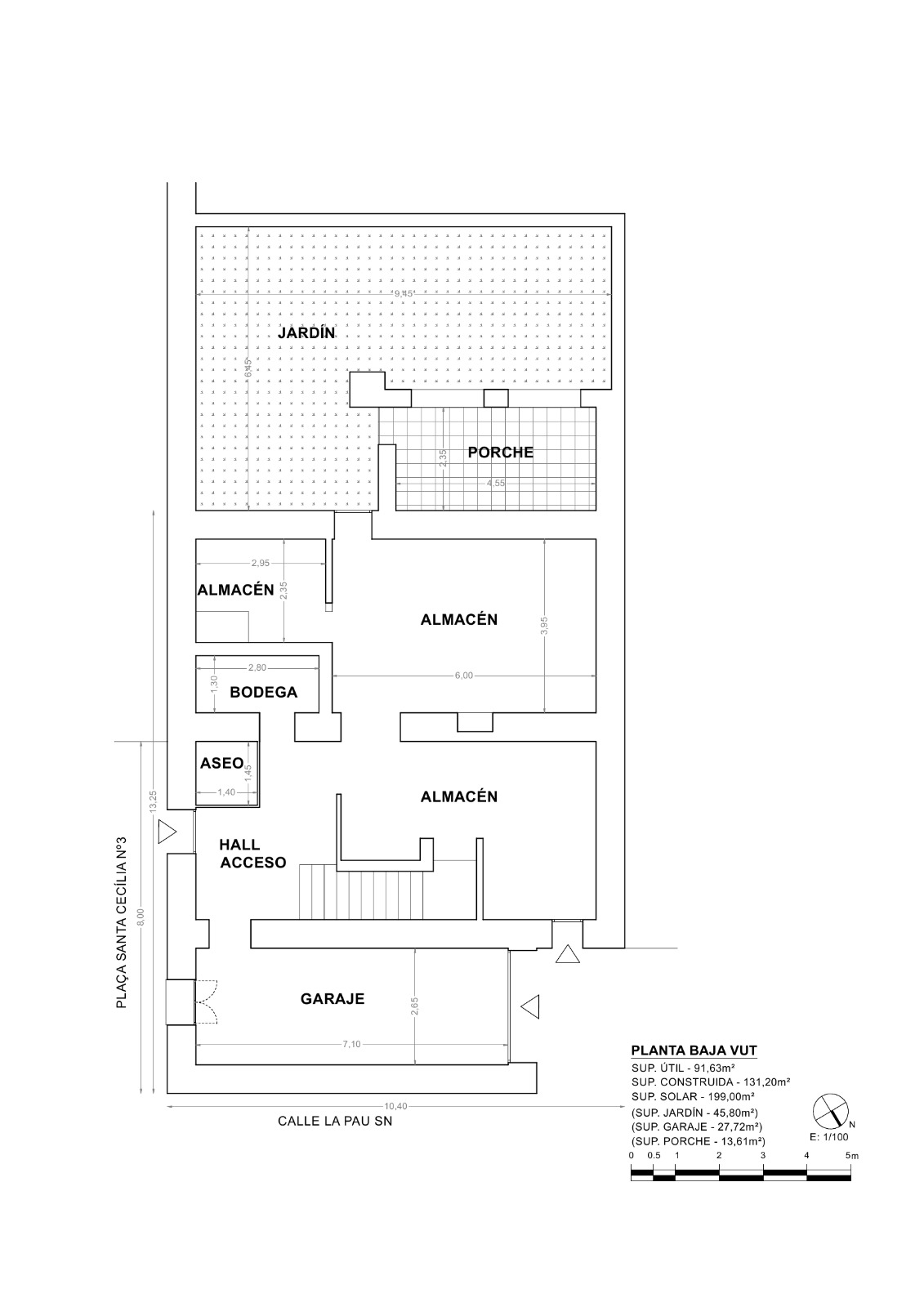
En el municipio de El Tarrós se ubica esta vivienda esquinera de 3 plantas construidas sobre una parcela de aproximadamente 200m2 en la que aún se conservan detalles únicos como el suelo cerámico y los elementos arquitectónicos en piedra original lo que le dan carácter y personalidad. En la planta baja se encuentra el garaje, bodega, varios zona de almacén, un aseo, el porche y un gran jardín. En la primera planta tenemos salón-comedor, cocina, recibidor, cuatro dormitorios, un baño y una terraza con vistas al jardín. Y la parte superior está destina a bajo cubierta con posibilidad de terraza. Actualmente es una casa para reformar pero que puede convertirse en un proyecto de vida. Ven a visitarla.

Datos

  • Referencia:  281
  • Precio de Venta:  55.000 €
  • Tipo:  Casa (Unifamiliar aislada)
  • Referencia Catastral:  6493405CG3169S0001QF
  • Superfície útil:  119 m2
  • Superfície construida:  414 m2
  • Baños:  2
  • Dormitorios:  4

Características

  • Año construcción:  1962
  • Estado conservación:  Necesita reforma
  • Dormitorios individuales:  4
  • Buhardilla
  • Ubicación local:  A pie de calle
  • Estancias:  1
  • Parking
  • Soleado
  • Balcon
  • Patio
  • Porche
  • Terraza/jardin
  • Centro Urbano
  • Carpinteria madera
  • Suelo gres
  • Superficie parcela:  199
  • Indice de referencia de precios de alquiler:  No disponible

Certificado Energético

Consumo de energía: KWh / m2 año
Emisiones: kg CO2 / m2 año
Escala de la Calificación Energética Consumo de Energía Emisiones
A (más eficiente)
B
C
D
E
F
G (menos eficiente)

Localización

  • País: España
  • Comunidad: Cataluña
  • Provincia: Lleida
  • Localidad: Tarròs, El
  • Situación concreta: Plaza Santa Cecilia
  • Tipo vía: Plaza
  • Nombre vía: Santa Cecilia
  • Código Postal: 25331

Mapa

¿Deseas más información sobre este inmueble?